Tanksline
TANKSLINE
Applicazioni Le colonne ed i serbatoi Tanksline possono essere utilizzati in vari processi, come ad esempio:
- colonne di lavaggio
- colonne di distillazione o rettificazione
- colonne di assorbimento Hcl/Hbr ecc.
- colonne di estrazione liquido
- reattori
- serbatoi di stoccaggio.
Proprietà del materialeIl PTFE è conosciuto come materiale ad eccellente ed universale resistenza anticorrosiva, limitata solo in presenza di alcuni metalli alcalini e miscele alogene speciali in particolari condizioni di temperatura.
Campo di impiegoIl campo di applicazione delle colonne rivestite con PTFE va da -10°C a +200°C. In funzione di particolari condizioni operative quali, elevati e repentini sbalzi di pressione e temperatura, particolari forme costruttive ecc. tale campo deve essere rivisto. Pressione d’esercizio fino a 6 bar; per l’applicazione in presenza di vuoto, vanno studiate particolari modalità costruttive. Il rivestimento in PTFE - Tanksline è ottenuto mediante l’utilizzo di materie prime vergini, trasformate con procedimenti particolari per garantire una elevata impermeabilità e stabilità dimensionale. Gli spessori proposti variano da 3 a 5 mm. Le note proprietà antiaderenti del PTFE, garantiscono l’assenza di contaminazioni e la facilità di pulizia, riducendo ed eliminando i tempi di fermo impianto. Le colonne ed i serbatoi sono disponibili nei diametri nominali da DN 300 sino a DN 2000 in tronchi flangiati con altezze sino a 2 m (in funzione del DN), fondi piani o tronco- conici, bocchelli saldati od estratti, completi di particolari interni in PTFE, quali piatti distributori, di sostegno, anelli di riempimento, diffusori, tubi pescanti ecc. Nel presente catalogo Vi illustriamo i dettagli costruttivi dei ns. componenti standard, l’utilizzo dei quali è consigliato onde limitare il numero degli eventuali pezzi di ricambio. L’utilizzo di componenti standard rivestiti con PTFE, nel caso di apparecchiature collaudate e certificate, consente l’eventuale ripristino del solo rivestimento senza la necessità di ricollaudare il supporto metallico.

ServiziDiflon Technology s.r.l. offre una serie completa di servizi:
- progettazione di dettaglio in accordo alle normative vigenti, ASME, PED ecc
- costruzione e collaudi con controlli di eventuali enti certificatori (ISPESL, TÜV, ecc.)
- supervisione al collaudo.
Colonna rivestita internamente in PTFE Vergine SP 5mm
Colonna rivestita internamente in PTFE Vergine SP 5mm
Diametro interno massimo consigliato 2000 mm
Altezza massima per tronco di colonna ≤ a DN 600L = 2000 mm;
≥ DN 700 fino 1200 mm
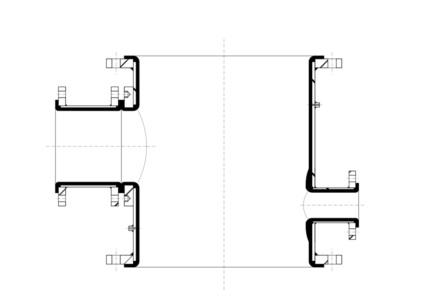
Le uscite sulle virole sono per DN ≤ 100 saldate direttamente sul PTFE; per DN ≥ 150 estratte direttamente dalla virola in PTFE.
Consigliamo il montaggio di guarnizione piana in Ocean di sezione variabile, ed un serraggio con chiave dinamometrica (vedi catalogo Diflon).
Indice elementi
1 Tronchi di colonna rivestiti internamente in PTFE 2 Tronchi di alimentazione
3 Tubi di immissione
4 Fondi piani e/o tronco conici
5 Anello di supporto griglie, campanelle ecc. 6 Griglia di supporto
7 Ridistributore in PTFE
8 Piano distributore
9 Serbatoi rivestiti in PTFE
Materiali
Metallici a richiesta e/o specifica del cliente
PTFE ASTM D 4894
Equipaggiamento-apparecchiature
È possibile equipaggiare le colonne e i serbatoi con piastre di supporto, con griglie anche in Hastelloy rivestite in PTFE, campanelle, piatti forati, anelli di supporto, iniettori, sistemi anti implosione ecc.
Fori di sfiato su tronchi di colonna e serbatoi PA
Ogni particolare deve essere provvisto di fori di sfiato di diametro minimo 3 mm, che hanno funzioni diverse: • segnalare tempestivamente eventuali perdite
• eliminare le sacche d’aria che si formano tra il supporto metallico e il rivestimento in PTFE
• possibilità di essere connessi ad un circuito di vuoto.
Raccomandazioni
In caso di prova idraulica delle parti metalliche i fori dovranno essere tappati. In caso di coibentazione esterna i nippli dovranno essere prolungati con tubetti filettati per superare il coibente. In caso di fermate dell’ impianto in cui esistono le condizioni di escursioni termiche, il rivestimento interno non essendo ancorata alle parti metalliche, si può muovere dalle sedi di tenuta. In questo caso si può ripristinare, utilizzando un’ apposita procedura contattando il nostro ufficio tecnico.

Tronco di colonna e serbatoio in metallo rivestito internamente in PTFE SP 5 mm Certificazione e collaudi
- Secondo normative vigenti sulle parti metalliche
- Dei materiali impiegati
- Con scintillometro e 10000 V sulle parti in PTFE
- Temperatura di esercizio -10°C +220°C
- Pressione di esercizio +6 bar
- Resistenze al vuoto fino a DN 600
Materiali
- Metallici: a richiesta del cliente
- PTFE: ASTMD4894 sp 5 mm
| Ø |
L max. |
Vuoto |
SP PTFE mm |
| 400 |
4000 |
si/yes |
6,5 |
| 450 |
3500 |
si/yes |
6,5 |
| 500 |
2500 |
si/yes |
4,5 |
| 600 |
1200 |
si/yes |
5 |
| 800 |
1200 |
no* |
5 |
| 1000 |
1200 |
no* |
5 |
| 1200 |
1200 |
no* |
5 |
| 1400 |
1200 |
no* |
5 |
| 1600 |
1200 |
no* |
5 |
| 1800 |
1200 |
no* |
5 |
| 2000 |
1200 |
no* |
5 |
Tronco di alimentazione/drenaggio per colonna rivestita internamente in PTFE
I tronchi sono dotati di uscite laterali saldate o estratte direttamente dal rivestimento interno di PTFE
Tubo di immissione in acciaio rivestito internamente ed esternamente in PTFE
I tubi di immissione sono utilizzati per alimentare nella colonna i fluidi di processo. Sono costruiti in acciaio e rivestiti internamente ed esternamente in PTFE. Nella parte finale del tubo è avvitato un terminale per distribuire il prodotto. Si possono anche eseguire curvature. Vi preghiamo di contattarci per ulteriori informazioni.
Fondi piani e/o tronco-conici per colonne rivestite in PTFE
Si consiglia l’uso di questi fondi come elementi di chiusura del lato superiore e del fondo delle colonne. Gli attacchi sono stati dimensionati sulla base della nostra esperienza e della nostra attrezzatura. Ovviamente sono possibili versioni in esecuzione speciale. I fondi delle colonne possono essere realizzati con fondi conici dis. A o fondi piani dis. B
Anello di supporto rivestito in PTFE
anello adattatore in acciaio rivestito in PTFE serve per sostenere griglie di supporto in PTFE, piatti forati, campanelle ecc. Si monta autocentrato sui tiranti esterni.
Griglia di supporto in PTFE
La griglia di supporto è costruita da un massello di PTFE, in vari spessori a seconda del diametro. È possibile anche in esecuzione rinforzata in Hastelloy rivestito in PTFE. Essa appoggia direttamente sull’anello di supporto o serrata direttamente tra le flange (punto 5).
Ridistributore in PTFE
Per evitare problemi di distribuzione del fluido di processo è opportuno prevedere l’inserimento di ridistributori alla distanza di 2-3 metri l’uno dall’altro. Il serraggio viene assicurato tra le flange. In questo modo è possibile assicurare la corretta ridistribuzione del fluido.
Piano distributore
È possibile equipaggiare le colonne con piatti di distribuzione in PTFE massiccio; che hanno la funzione di distribuire il prodotto in modo più uniforme.
Serbatoi e reattori rivestiti internamente in PTFE
I dati tecnici di progetto corrispondono a quelli standard riportati nelle pagine precedenti poiché si utilizzano le stesse modalità costruttive. È possibile variare il numero e le dimensioni degli attacchi. Sono disponibili accessori come tubi di immissione, valvole, agitatori ect. Vi preghiamo di contattarci per ulteriori informazioni sui nostri serbatoi.
TABELLA VOLUME-DIMENSIONI
| Volume m3 |
DN |
H |
| 0,25 |
600/24” |
1200 |
| 0,5 |
800/32” |
1000 |
| 1 |
1200/48” |
900 |
| 1,5 |
1000/40” - 1400/56” |
2000* - 1000 |
| 2 |
1200/48” - 1500/60” |
1800* - 1100 |
| 3 |
1400/56” - 1500/60” |
2000* - 1800* |